
Location: Licking County, OH
Date: 2019 – 22
Status: Unbuilt
Services Provided:
Architectural Design
Energy Modeling
Construction Drawings
Structural Coordination
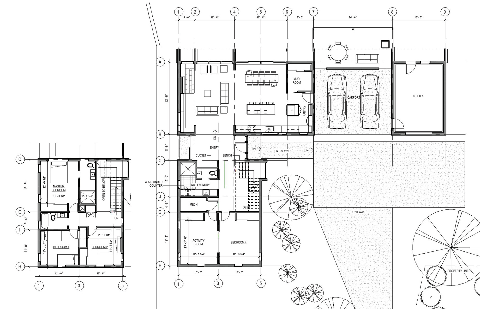
The Box Trot House began on an irregularly lot at the edge of a small town, constrained by the flood plain of a creek and the presence of an adjacent home. Presented with a set of conceptual approaches, the clients selected the “box trot” scheme, stitching together a vernacular gable box form containing the home’s four bedrooms with a expansive linear living space facing an open field and the woods beyond. A breezeway/carport, generous covered porch, and utility room completed the plan of approximately 2700 ft2. A stairway and screen of locally-sourced maple connects the private floors, while deep fins and a light shelf bounding the northwest-facing hearth/living/dining rooms control western sun while keeping the facade open to views. A 6.84 kW PV array was incorporated into the roof.









