
Location: Various
Date: 2012 – 13
Status: Unbuilt
Services Provided:
- Architectural Design
- Energy Modeling
- Technical Development
- Marketing Materials
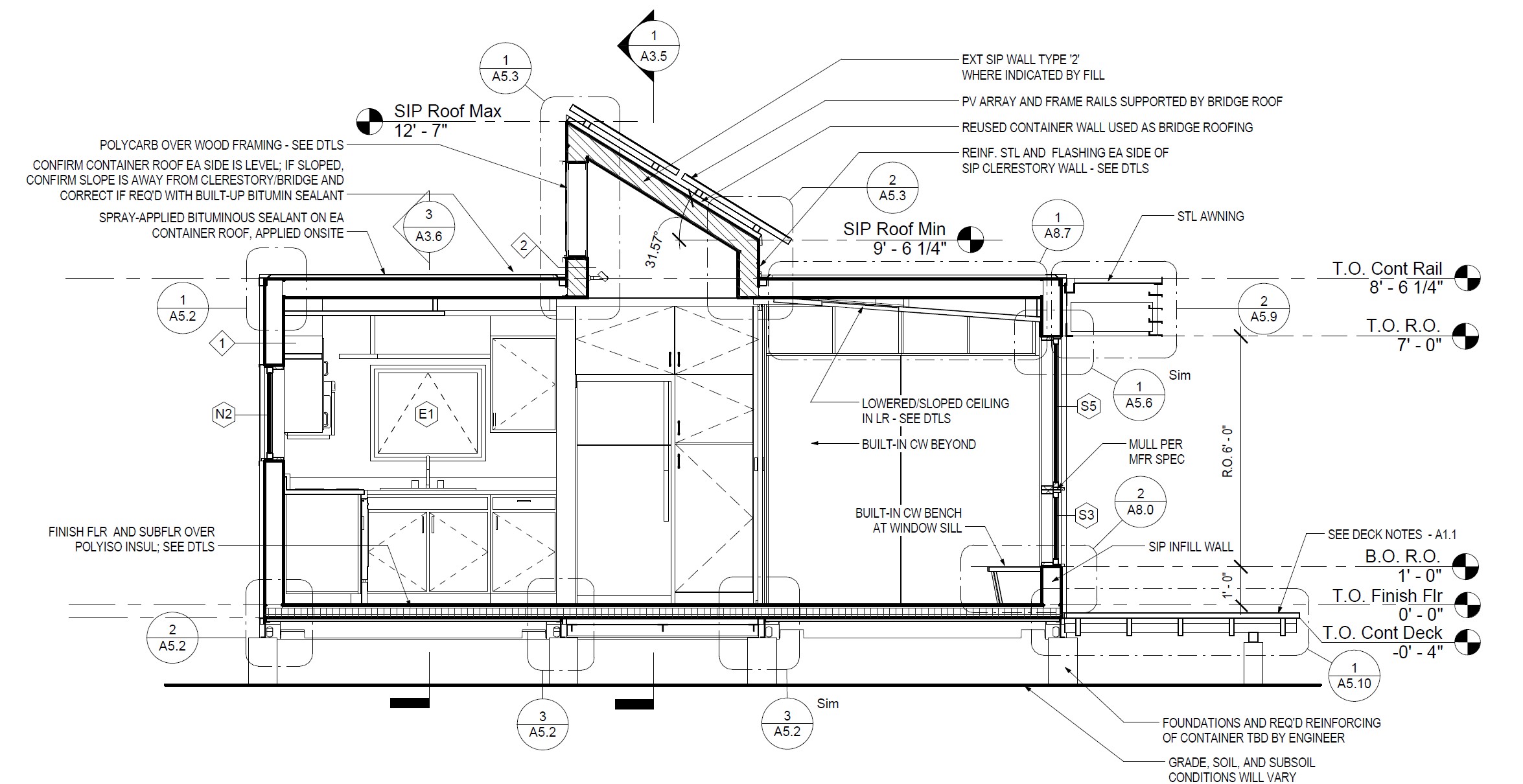
A startup with roots in Kansas and Arizona worked with Helia to develop this prototype for a cabin that would use recycled shipping containers. Unlike many container-based projects, Helia’s solution used a minimal tube steel frame that would stitch two containers together, while reinforcing a large cutaway in the original container shell. The result is flexible open plan that focuses on the main living space, featuring ample daylight, natural ventilation, and solar heating. Helia also developed project-specific solutions for foundations, prefab deployment, and high-density insulation.
The design was featured in the 2014 issue of Cabin Life Magazine. In addition to design and energy modeling, Helia also developed custom marketing materials for the project.









