
Location: Cloud County, KS
Date: 2021 – 22
Status: Unbuilt
Services Provided:
Architectural Design
Energy Modeling
Construction Drawings
Structural Design (Framing)
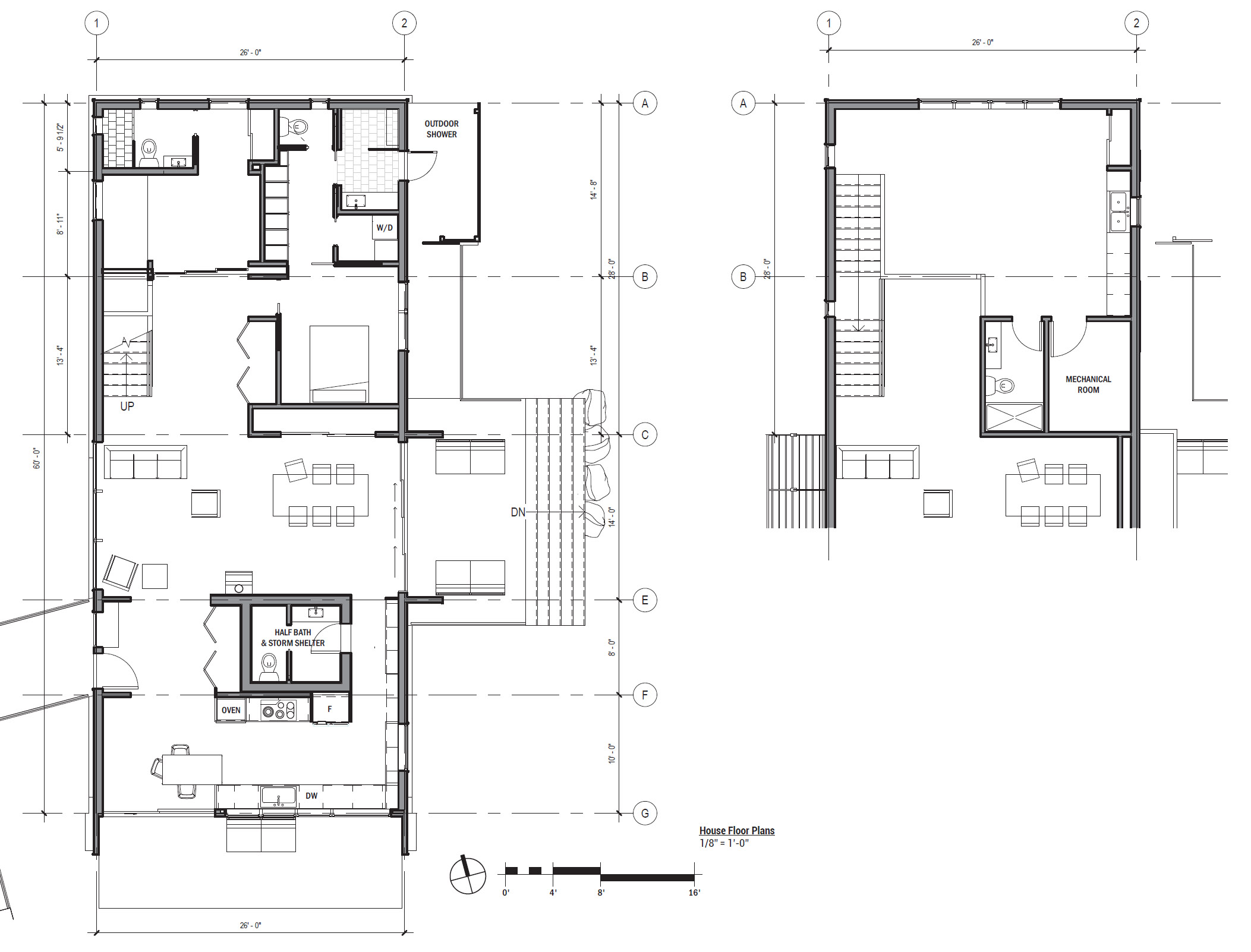
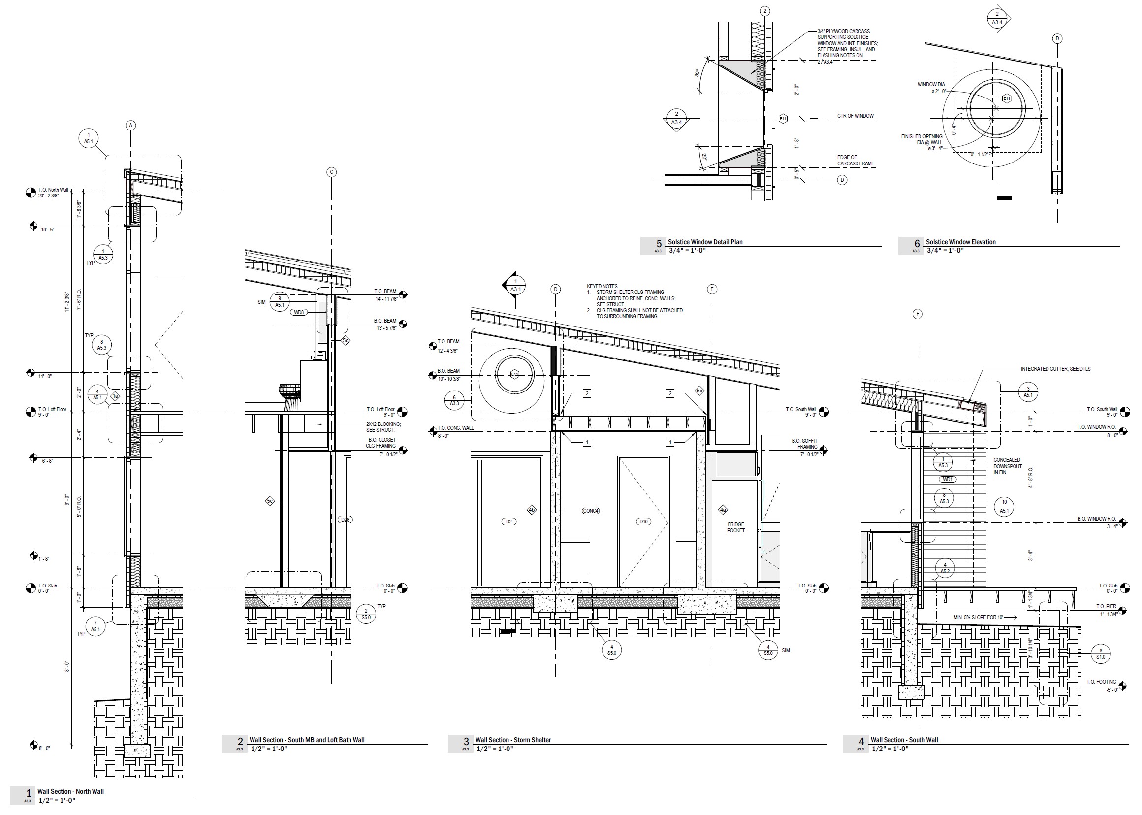
The Glen House takes its name from its site, whose focal point was a grassy slope ending in a creek, surrounded by woods. Helia designed the home for a retired couple who desired a simple but unique net zero home at the edge of a small town in the northern Smoky Hills. The house took its shadowy color and wedge form from the surrounding buttes and rock outcroppings of the area. Approaching the home on a curved path, entry into the home is made by a bridge separating house from carport, with the inside of the wedge shaped volume airy and open, containing living spaces, stairs to the upstairs studio, and a kitchen and breakfast area that collects winter sunlight. Private rooms are tucked under the studio on the north side of the house, to complete a footprint of just over 2,100 ft2 with an additional 1,300 ft2 in the carport/utility room. Extensive studies were completed to protect the east and west sides of the home from summertime sun, while still allowing a views of the surrounding meadow, treelines, and sky. The home’s estimated EUI was 10 kBtu/ft2 and a planned 9.1 kW photovoltaic array with 24 modules would offset its annual energy needs.
















