
Location: Jefferson County, KS
Date: 2022 –
Status: Under Construction
Services Provided:
Architectural Design
Field Measurement
Energy Modeling
Construction Drawings
Prefabrication
Onsite Assembly
Casework Fabrication
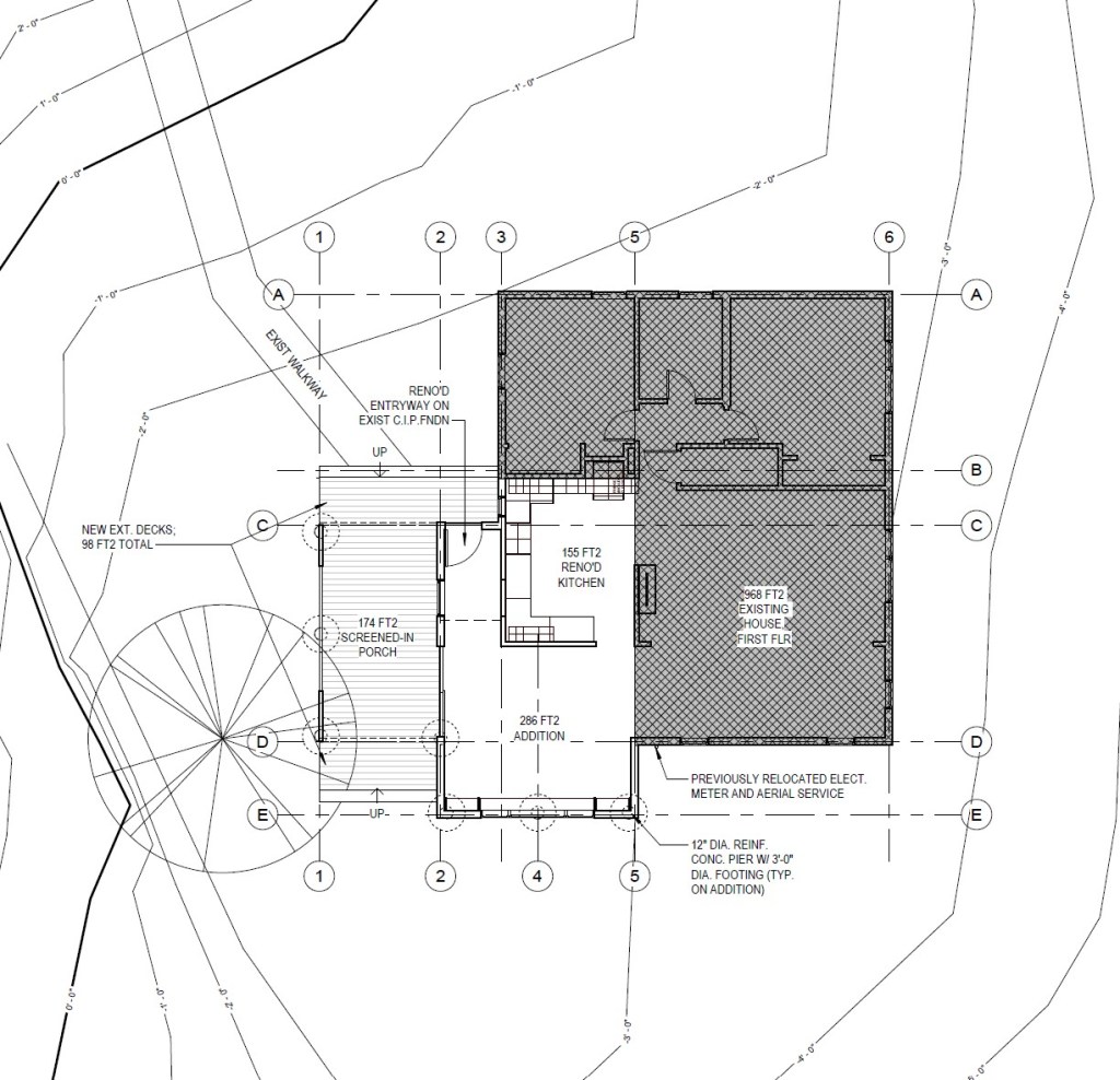
Renovating an unassuming home built in 1980, the Kaw Residence took on major deficiencies in the home’s interior spaces, connection to outdoors, energy efficiency, and overall function. Helia developed a renovation strategy that utilized inexpensive reinforced concrete piers to expand the home’s living space while adding a screened-in outdoor room and re-imagining the dysfunctional kitchen and entry sequence. Floors and walls of the addition will utilize prefab construction methods, allowing work on site to be rapid and carefully managed. The renovation will also double the R-value of the walls and ceilings in the home, integrate new high performance windows, and replace the HVAC system with a heat pump in preparation for the home to achieve net zero with the later addition of photovoltaic panels.




