
Location: Wichita, KS
Date: 2022 –
Status: Under Construction
Services Provided:
- Architectural Design
- Energy Modeling
- Construction Drawings
- Prefab Design
- Structural Design (Framing)
- Prelim HVAC Design
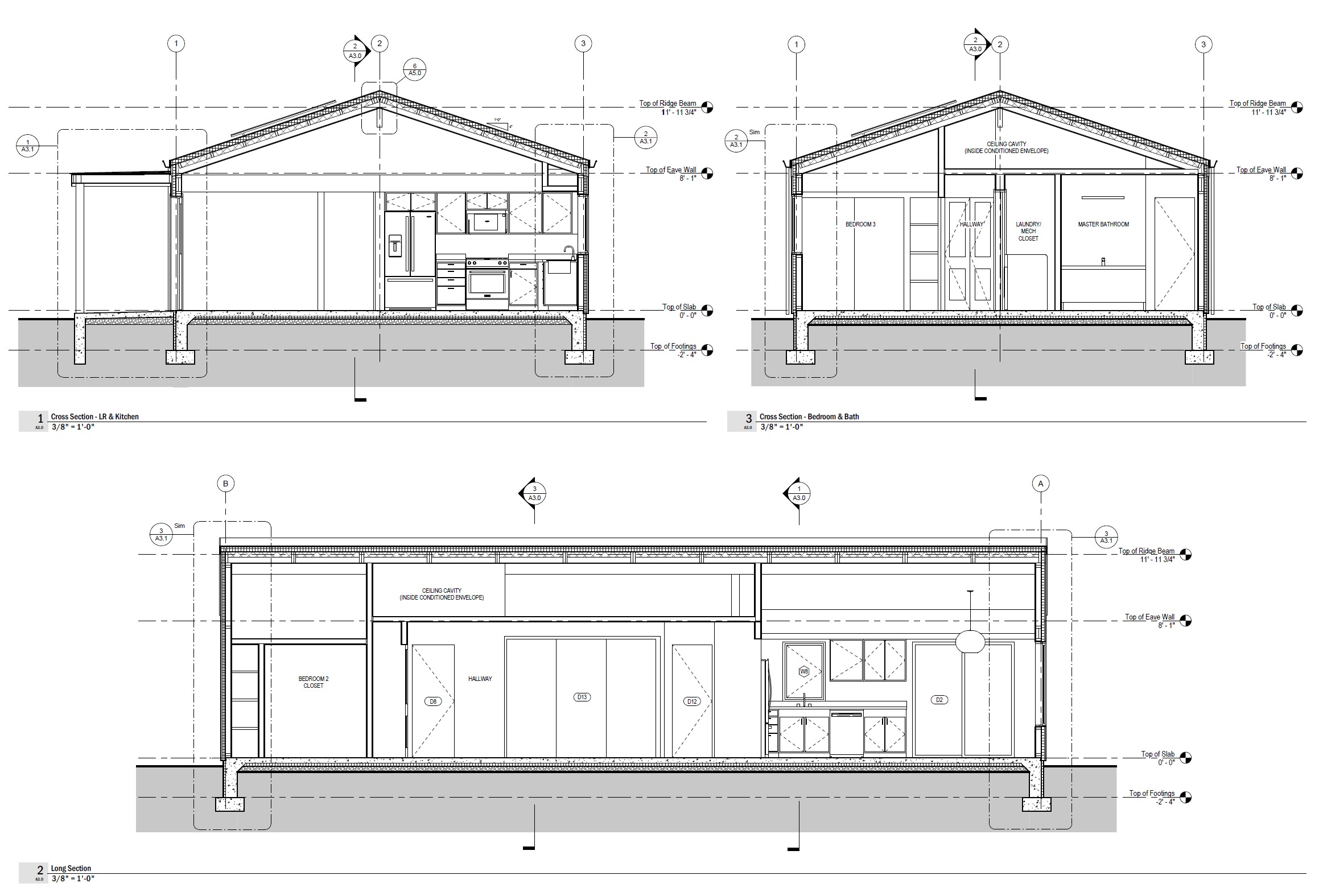
Helia worked with a major Wichita developer and builder team to create a series of prefabricated homes focusing on net zero energy performance and affordability. The builds will use Helia’s IRC-compliant prefab system, and Helia’s services for these projects include architectural design and specification as well as the design of the home’s structure and the production of drawings and technical instructions for prefabrication.
Helia anticipates the development of three exclusive designs in this series, with variants adapted to the climates of Kansas as well as Texas. Designs also feature flexible orientation and a variety of options for attached porches and carports to adapt to different infill and larger-scale development conditions.
Homes in this series are all 3-bed, 2-bath with approximately 1200 ft2, and will achieve net zero in the Kansas climate with an affordable 4.80 kW photovoltaic array, with predicted energy use less than half of a comparably-sized new home and less than 20% of the typical Kansas home.











